人和医院新建病房楼项目批前公示
日照计算技术报告书
项目名称:无极人和医院新建病房楼 委托单位:无极人和医院
北方工程设计研究院有限公司二〇二四年三月
日 照 计 算 技 术 报 告 书
项目名称:无极人和医院新建病房楼委托单位:无极人和医院
项目地点:石家庄市无极县
一、日照计算主要依据
1. 《城市居住区规划设计标准》(中华人民共和国国家标准 GB50180—2018 年版)
2. 《建筑日照计算参数标准》( 中华人民共和国国家标准GB/T50947-2014)
3. 《住宅设计规范》(中华人民共和国国家标准 GB50096—2011)
4. 《民用建筑设计统一标准》( 中华人民共和国国家标准 GB50352-2019)
5. 《建筑设计资料集》(第二版,第一册,中国建筑工业出版社)
6. 《石家庄市城乡规划管理技术规定》
7. 《石家庄市城乡规划局日照计算技术规定》
8. 该区域的 1:1000 电子地形图
9. 地理信息采集数据
二、日照计算采用软件
计算软件:建设部科技司评估认定的“众智SUN 日照分析 11.0”
软件,评估证书号:建科评【2002】028 号。
三、场地情况
经过现场踏勘,场地周边情况如下:
东:人和南街及绿化带
西:无极县公安局
南:千山东路
北:住宅楼
四、日照计算参数
日照计算标准计算日:住宅为大寒日城市经纬度:38°04′,114°30′
有效日照时间带:大寒日为 8~16 时,冬至日为 9~15 时计算平面高度:详见附件标注
计算间隔:1 分钟
计算间距:1.0 米
日照基准年:公元 2001 年
五、日照计算范围及说明
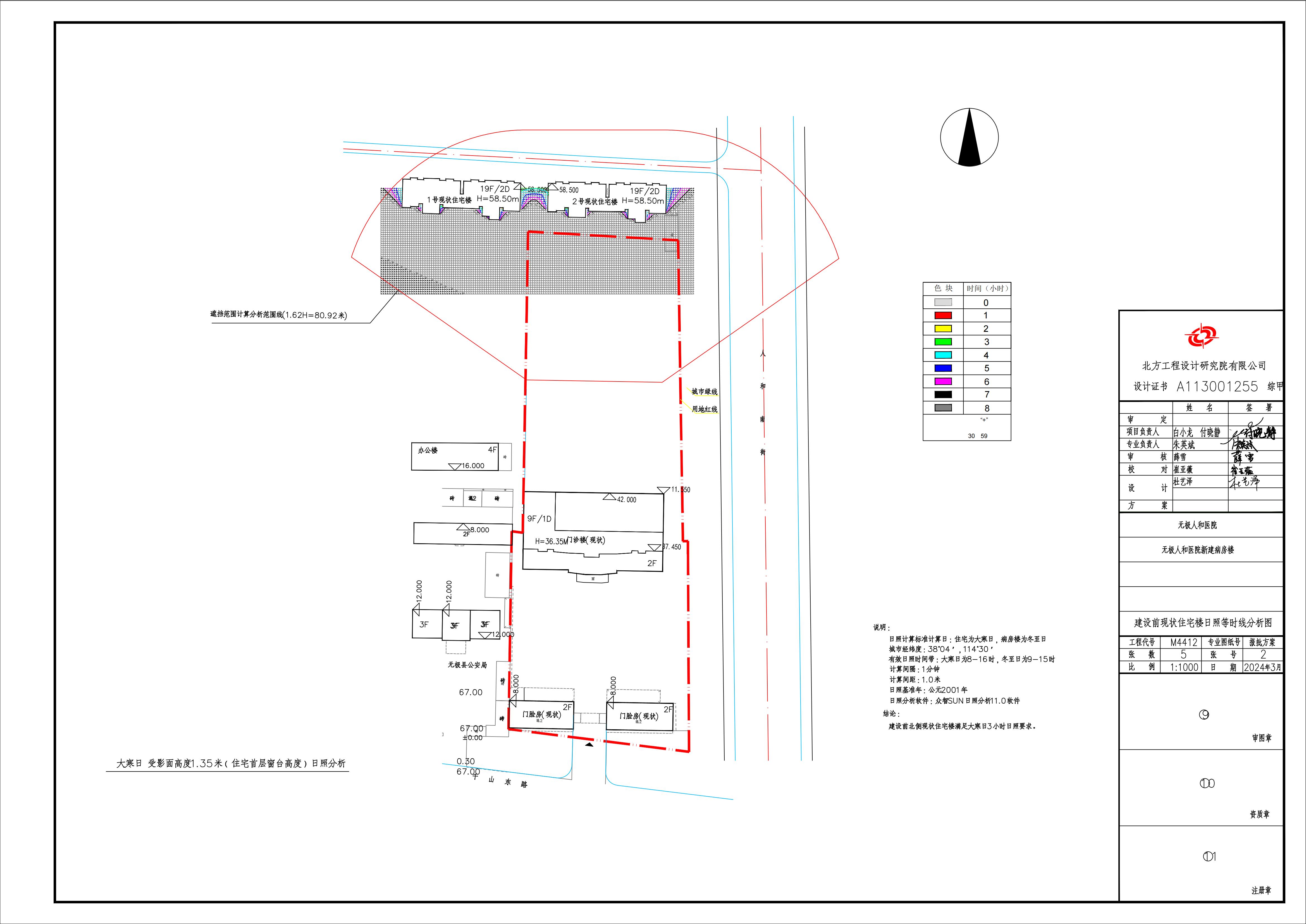
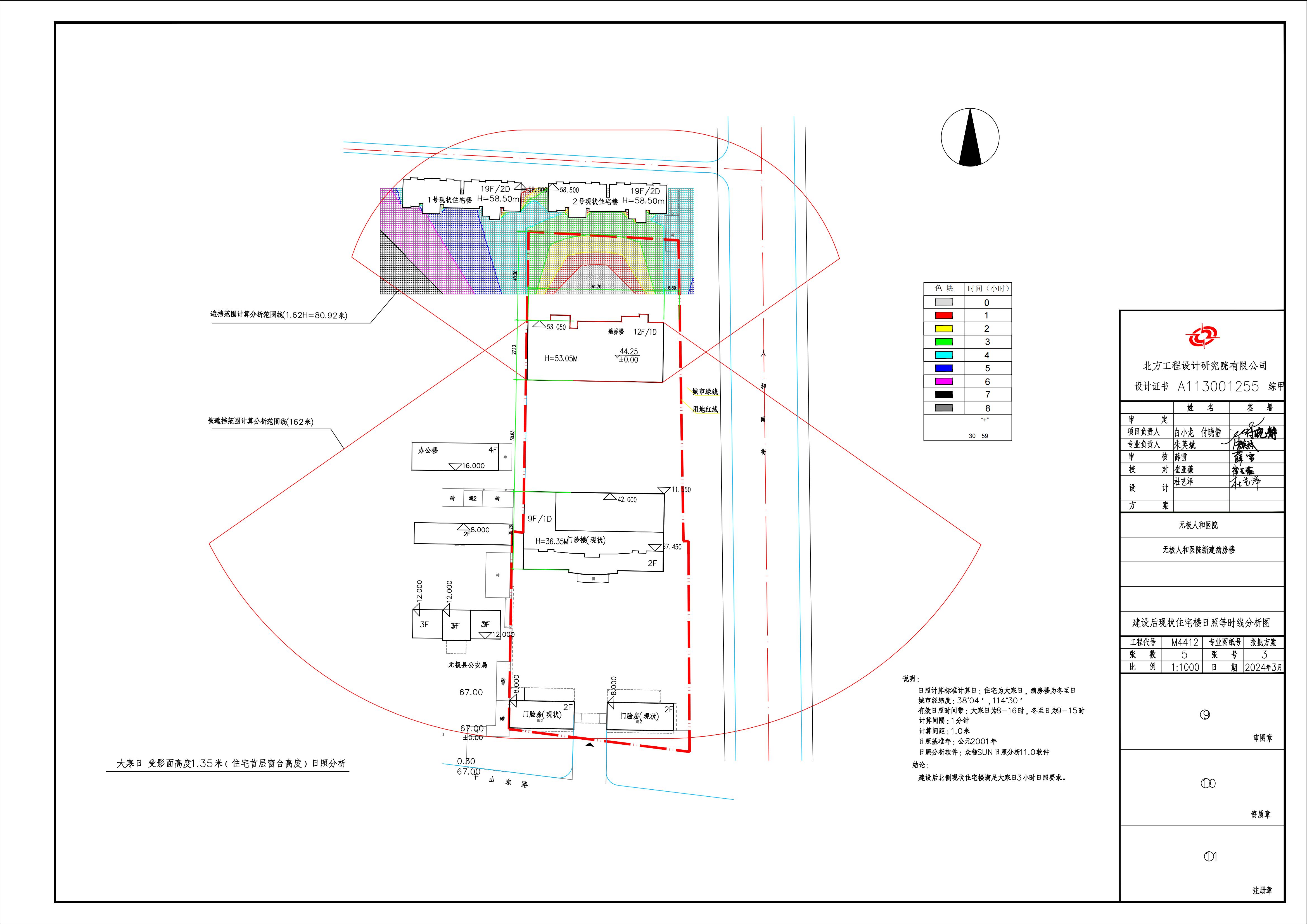
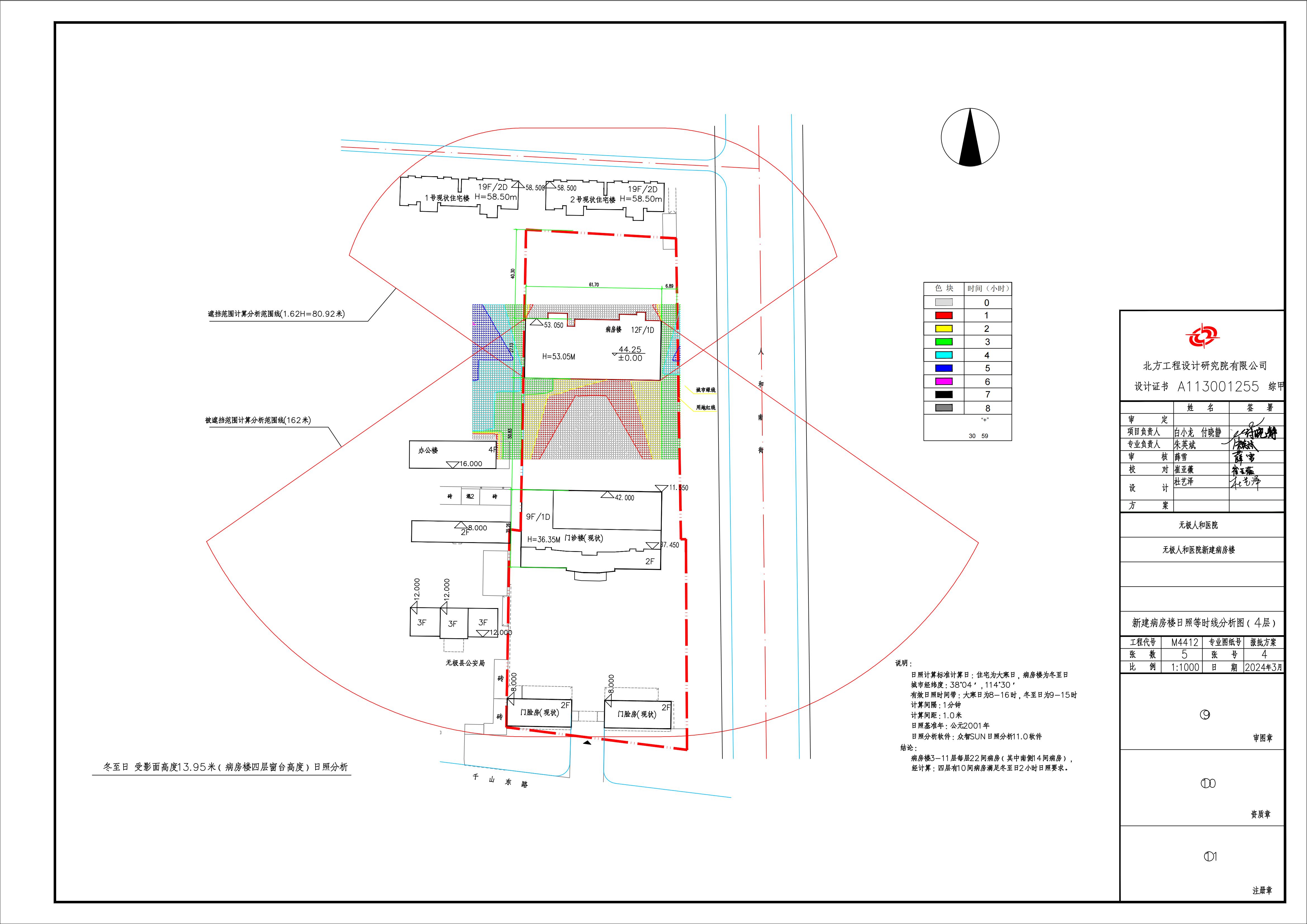
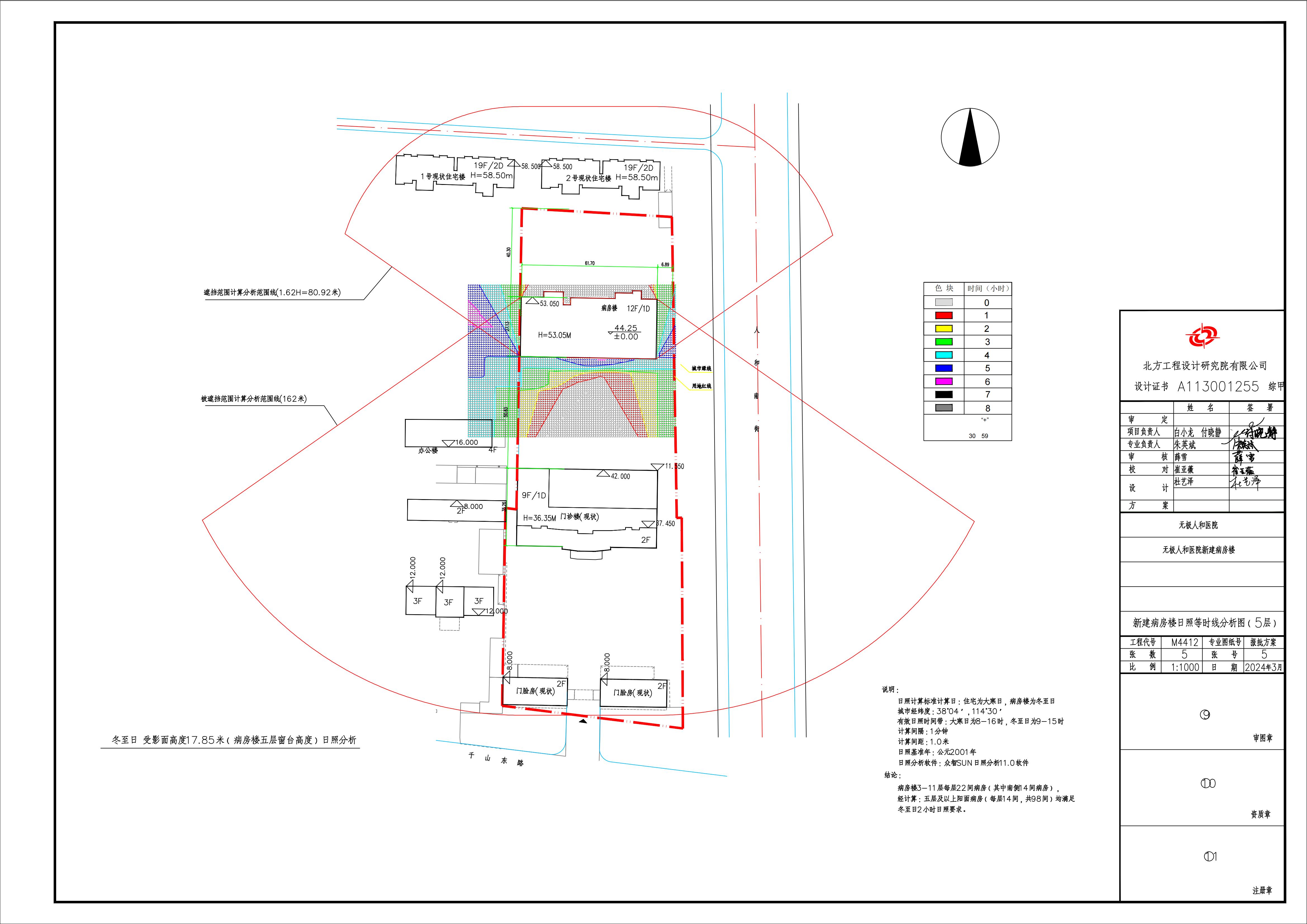
该项目日照计算包括项目内现状建筑、规划建筑、项目周边现状, 详见附件。各建筑单体檐口高度参见附件。
六、日照分析计算结论
1、四层 10 间及五至十一层各 14 间(共 10+14*7=108 间)满足冬至日 2 小时日照要求,占总病房数(22*9=198 间)的 54.5%,满足半数以上病房冬至日 2 小时日照要求。
2、计算范围内北侧现状住宅满足大寒日有效日照时间 3
小时以上,具体情况参见附件。
附件:
1、新建病房楼主客体范围线图
2、建设前现状住宅楼日照等时线分析图
3、建设后现状住宅楼日照等时线分析图
4、新建病房楼日照等时线分析图(4层)
5、新建病房楼日照等时线分析图(5层)
注:本技术报告仅适用于附图所限定的项目内及周边建筑情况
计算分析单位:北方工程设计研究院有限公司
|
计 算 分
|
析:
|
杜艺泽
|
|
校
|
核:
|
薛雪
|
|
技 术 负 责
|
人:
|
朱英斌
|
|
计 算 日
|
期:
|
2024 年 3 月 7 日
|







