中国政府网  |  省政府  |  市政府  |  无障碍   |  适老模式
设为首页 | 关于我们
当前位置:首页 > > 专题1 > > 行政执法公示 > > 事前公开 > > 部门 > > 无极县自然资源和规划局
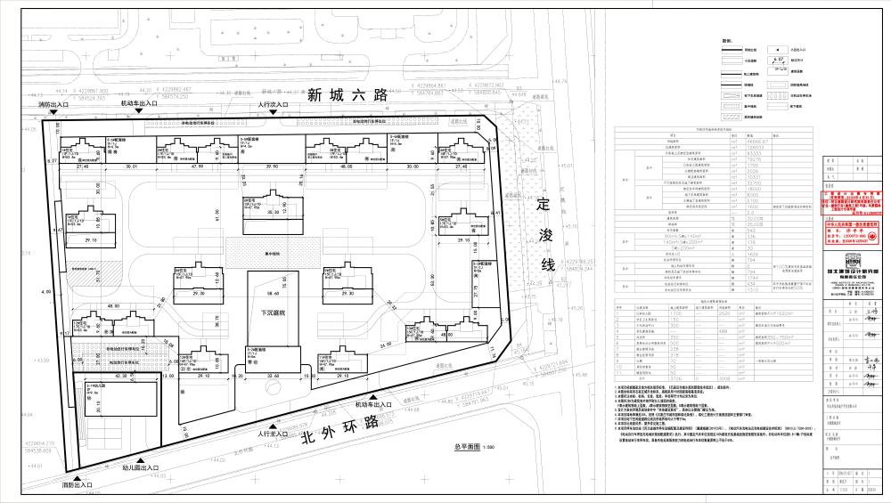
无极县自然资源和规划局关于新城壹号项目设计方案批前公示的通告
发布时间:2026-04-14    来源:无极县自然资源和规划局
【字体: 】    打印
政策文件: