中国政府网  |  省政府  |  市政府  |  无障碍   |  适老模式
设为首页 | 关于我们
当前位置:首页 > > 专题1 > > 行政执法公示 > > 事后公开 > > 部门 > > 无极县自然资源和规划局 > > 行政许可
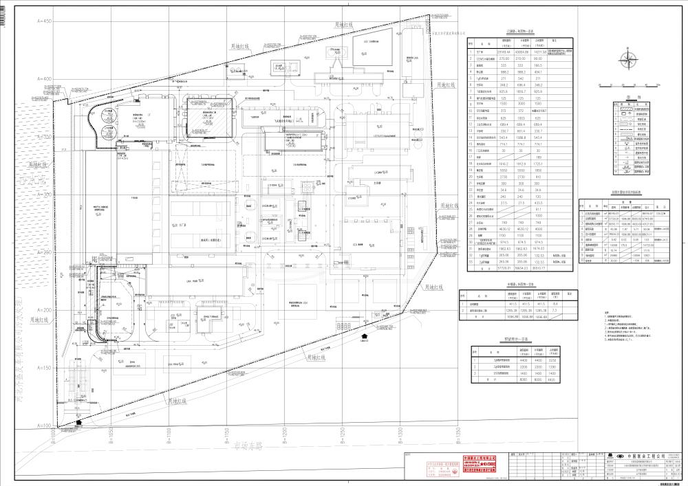
石家庄嘉盛新能源有限公司锅炉提升改造项目建设工程规划许可证批后公示
发布时间:2025-07-21    来源:无极县自然资源和规划局
【字体: 】    打印
政策文件: