中国政府网  |  省政府  |  市政府  |  无障碍   |  适老模式
设为首页 | 关于我们
当前位置:首页 > > 专题1 > > 行政执法公示 > > 事后公开 > > 部门 > > 无极县自然资源和规划局 > > 行政许可
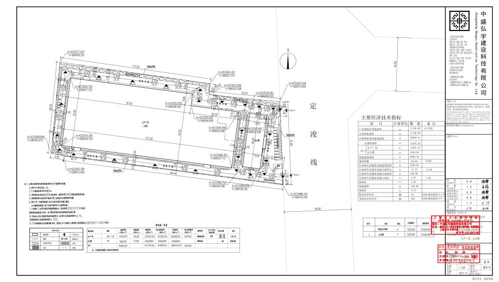
石家庄弘翊新能源材料有限公司年产光伏玻璃4万吨项目建设工程规划许可证批后公示
发布时间:2025-11-28    来源:无极县自然资源和规划局
【字体: 】    打印
政策文件: